سانيا • زقاق مزدهرة


1.jpg


يقع زقاق سانيا • المزدهر عند تقاطع طريق هيرون وطريق المجمع الصناعي في المنطقة الأساسية لمدينة سانيا. تعمل هذه المنطقة كمركز للمدينة ، حيث تجمع بين العناصر الحضرية والتجارية والتعليمية والترفيهية والطبيعية ، وتربط ثلاث مناطق تجارية رئيسية وأربع مناطق أساسية بين الجبال والبحر.

2.jpg

اسم المشروع : زقاق مزدهر

عنوان المشروع : تقاطع طريق هيرون وطريق الحديقة الصناعية ، منطقة تيانيا ، مدينة سانيا

المطور : سانيا العصر الجديد للتطوير العقاري المحدودة

مساحة الأرض : 25 فدان

نوع العقار : سكني

مساحة البناء الإجمالية : 50,735.5 متر مربع

نسبة الأرض : 2.8

نسبة وقوف السيارات : 1: 1

اتجاه البناء : الشمال والجنوب

المرافق : المياه العامة والكهرباء

معدل التخضير : 40٪

مجموع الطوابق : 23

إجمالي عدد الوحدات : 336 ، مصعدين لكل طابق ، أربع وحدات لكل طابق

السعر :  التسعير على أساس الوحدة

إدارة الممتلكات : فريق إدارة ممتلكات المطور

رسوم إدارة الممتلكات : 2.6 يوان / متر مربع

أنواع الوحدات : 86 متر مربع - 117 متر مربع

تاريخ الانتهاء المتوقع : 31 ديسمبر 2023

معيار التسليم : مفروشة بالكامل بالأثاث والأجهزة

مرحلة التطوير : جاهز للإشغال

مرافق المشروع : بركة سباحة – ملعب كرة سلة – قاعة ثقافية متعددة الوظائف – شارع تجاري على مستوى الشارع

طرق الدفع : الدفع الكامل ، يقبل الرهن العقاري

 

** تخطيط الشقة: **

ملاحظة: تمثل المنطقة المظللة منطقة المكافأة.

 

117 متر مربع، أربع غرف نوم، غرفتي معيشة، حمامين 

3.jpg

4.jpg

5.jpg

6.jpg

7.jpg


110 متر مربع، أربع غرف نوم، غرفتي معيشة، حمامين

8.jpg

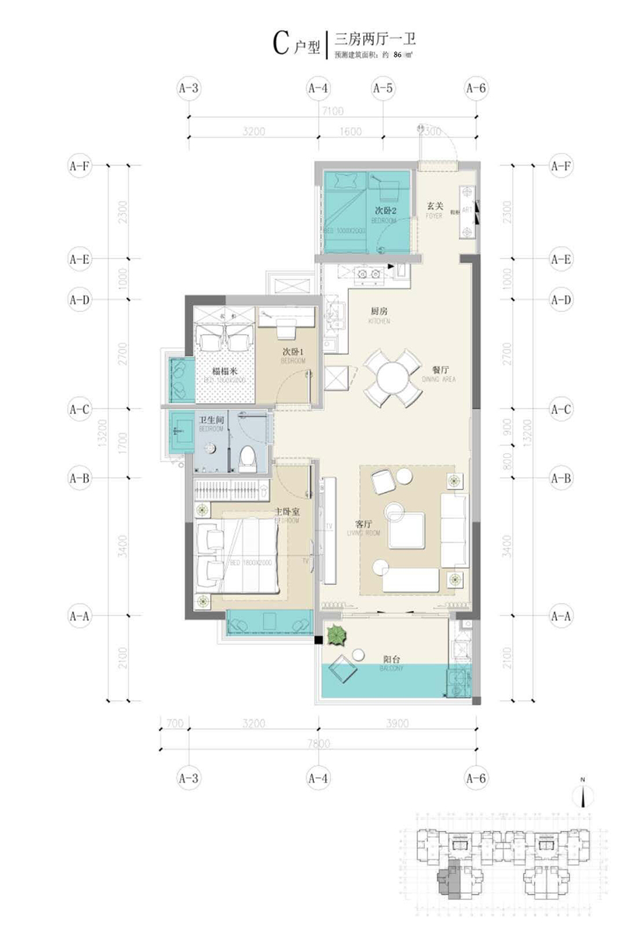
86 متر مربع، ثلاث غرف نوم، غرفتي معيشة، حمام واحد

9.jpg

مزايا مخططات الطوابق

يتكون المبنى من 23 طابقا ، مما يوفر إضاءة طبيعية ممتازة مع إطلالات رائعة في الأمام وحديقة في الخلف. تتميز جميع مخططات الطوابق بضوء النهار الكامل ، والتوجه من الشمال إلى الجنوب ، وتخطيطات المطبخ المفتوح والحمام.

 

بالإضافة إلى ذلك ، تم تجهيز كل وحدة بنوافذ كبيرة الحجم وشرفات واسعة. يتم توفير مساحة إضافية سخية لكل وحدة ، مع نصف مساحة الشرفة ومساحة دراسة نافذة الخليج بأكملها كإضافات مجانية.